How Much Is Your Home Worth?   Request a Free Instant Valuation  

Central Way, Warrington £110,000

  • LIVING ROOM
    Central Way
  • BEDROOM ONE
    Central Way
  • FRONT ELEVATION
    Central Way
  • OPEN PLAN LIVING ROOM / KITCHEN
    Central Way
  • OPEN PLAN KITCHEN
    Central Way
  • ELEVATED VIEWS
    Central Way
  • BEDROOM TWO
    Central Way
  • BATHROOM
    Central Way

Please enter your starting address in the form input below.
Please refresh the page if trying an alernate address.



  • INVESTMENT OPPORTUNITY
  • UPPER FLOOR APARTMENT
  • TOWN CENTRE PROPERTY
  • MODERN HOME
  • TENANT IN SITU
  • AVAILABLE NOW FOR VIEWINGS
  • TWO BEDROOMS
  • CAR PARKING AVAILABLE
  • 2 MIN WALK TO WARRINGTON CENTRAL TRAIN STATION
  • CALL TO VIEW

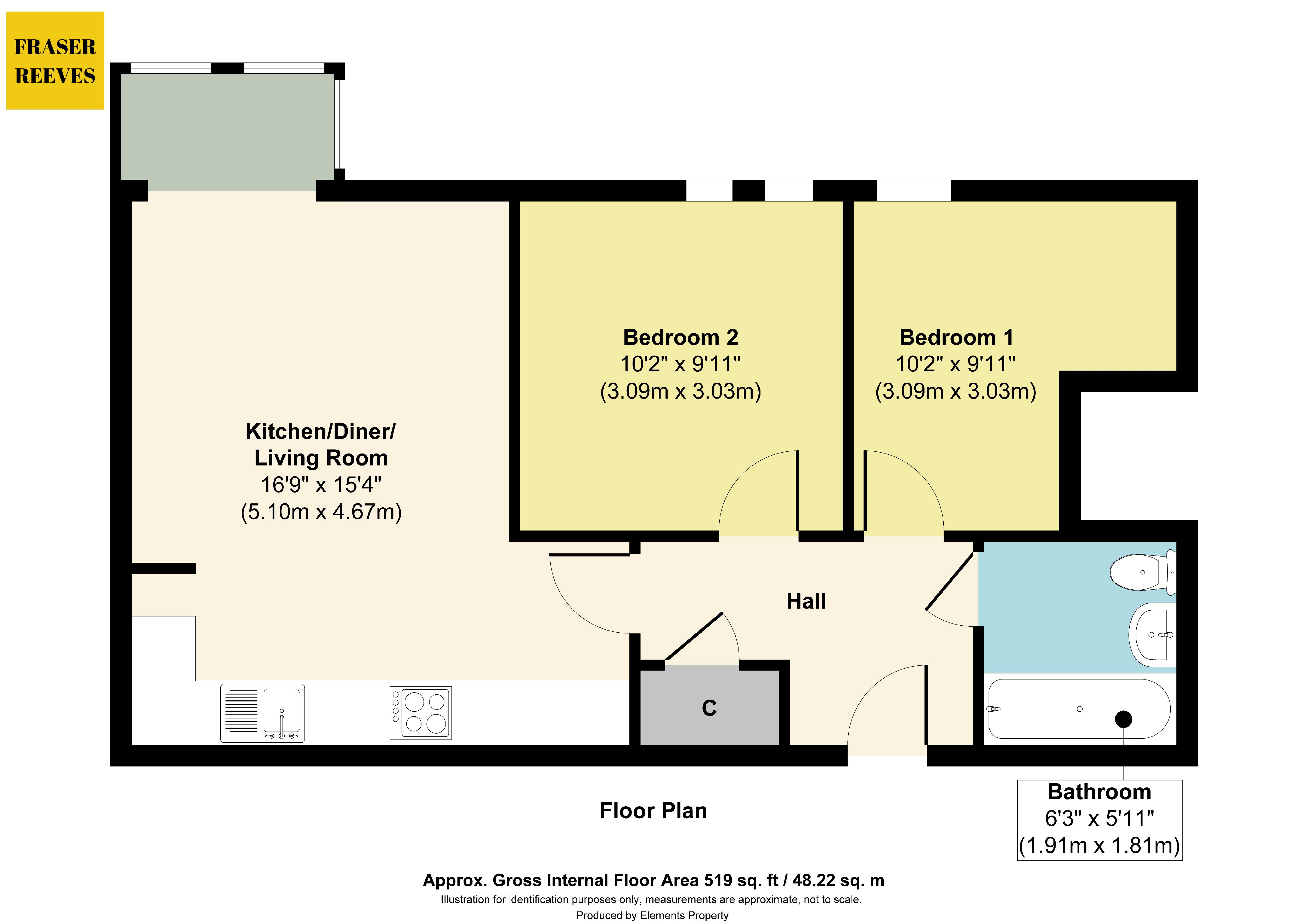
Two-bedroom upper floor apartment offered with a tenant in situ, providing immediate rental income. The property is located in a highly convenient central position, just a 2-minute walk from Warrington Central train station, making it a practical and consistently desirable location for tenants. The apartment is modern in design and well maintained, offering two bedrooms and comfortable living accommodation. Car parking is available, adding to the overall appeal and ease of occupancy. This property represents a solid investment opportunity, suitable for buyers seeking an established rental asset with income in place from completion. Key features: • Two-bedroom upper floor apartment • Tenant in situ – instant rental income • Modern, well-presented accommodation • Central location • 2-minute walk to Warrington Central Station • Car parking available • Viewings available now For further information or to arrange a viewing, please contact Fraser Reeves on 01925 222555 or email This email address is being protected from spambots. You need JavaScript enabled to view it. Notes: - There is an application for works to cladding (currently underway and awaiting approval). - This property is in the Winwick Street Conservation Area. Full details: www.warrington.gov.uk/sites/default/files/2019-08/winwick_street.pdf


Rooms


Request A Viewing

Photo Gallery

EPC

Floorplans (Click to Enlarge)

Nearby Places

Name Location Type Distance
Central Way
Warrington WA2 7TJ
County: Cheshire
Sale Type: For Sale
Ref #: FR001717
Sarah Cartlidge
Fraser Reeves Estate Agents Limited